Teodora MARTIN Négociatrice
Télécharger la fiche

Maison 5 pièce(s) 3 chambre(s) 145 m²

Fortschwihr (68320)
350 000 € Référence YY1F

A propos de ce bien

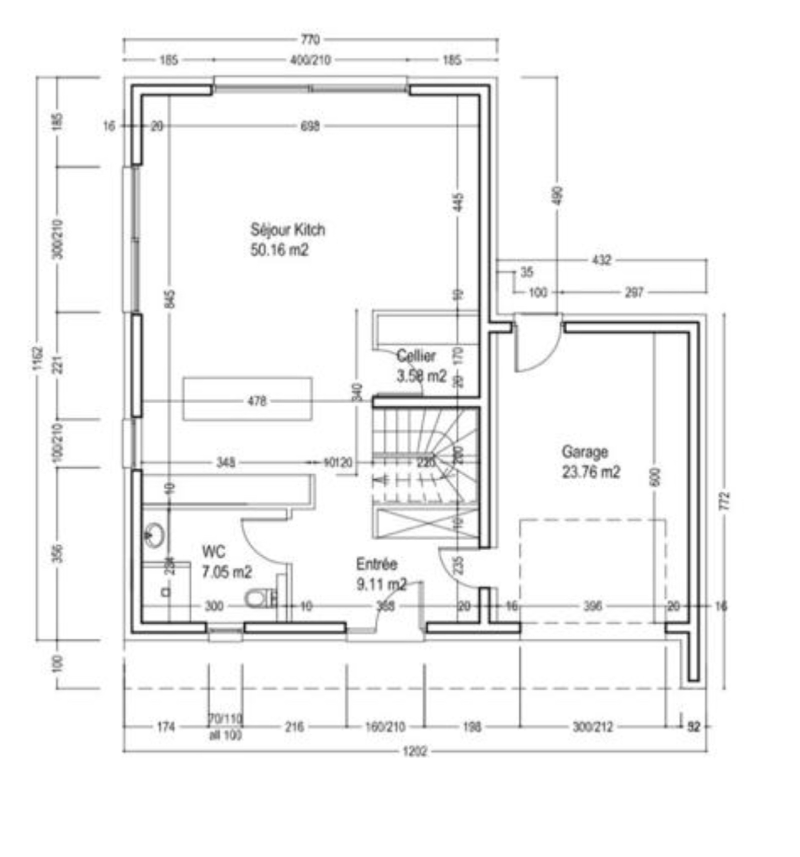
A Fortschwihr, MAISON 5 pièces de 145 m² avec garage idéalement située à proximité immédiate de toutes commodités et de Colmar. Composée d'une entrée de 10m², une cuisine aménagée et entièrement équipée ouverte sur le salon séjour de 50m² avec un accès au jardin, un WC indépendant et un cellier. A l'étage: une suite parentale avec dressing et salle d'eau privative, 2 grandes chambres et 1 salle de bain avec fenêtre. La maison dispose d'un garage de 24m2 avec une porte motorisée et un accès direct à la maison et le jardin. Construction 2022 et aux normes PMR. Les informations sur les risques auxquels ce bien est exposé sont disponibles sur le site Géorisques : www. georisques.gouv.fr

Caractéristiques de ce bien

  • Surface 145 m²
  • 3 chambre(s)
  • construit en 2023
  • Chauffage individuel : au sol (pompe à chaleur)
  • 1 garage(s)
  • 1 niveau(x)
  • accès handicapé

Diagnostics énergétiques

DPE
GES
DPE ANCIENNE VERSION

Informations financières

Prix de vente honoraires TTC inclus 350 000 €

Autour du bien

  • Commerces et santé
  • Loisirs
  • Ecoles
  • Transports
  • Pratique

Calcul des mensualités

* Champs obligatoires